Terreno en Venta en Antofagasta

Antofagasta, Antofagasta
CLAntofagastaAntofagastaAntofagasta

Características

Terreno en Venta

Precio

UF 17.000

$672.987.160

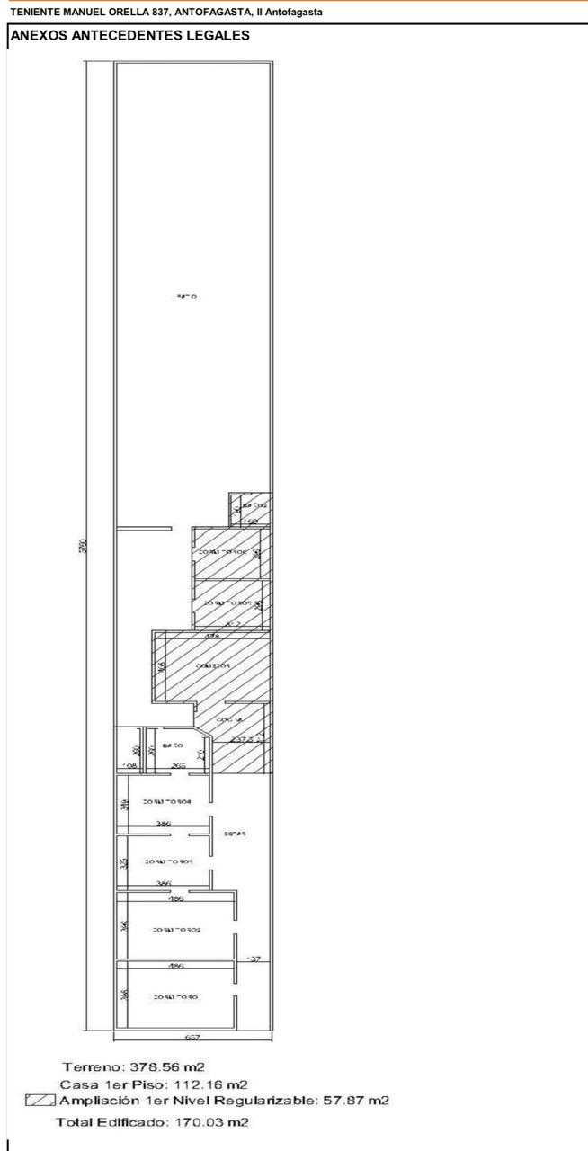
Superficie Total

37.856 m²

Ubicación

Antofagasta


Descripción

Código KUTT : 96295 | ¡Descubre una oportunidad única en el corazón de Antofagasta! Te presentamos un extenso terreno de 37,856 metros cuadrados, ideal para dar vida a tus sueños y proyectos más ambiciosos. Localizado convenientemente en una de las comunas más dinámicas de la región, este espacio es perfecto para desarrollar tus ideas, ya sea un innovador complejo empresarial, un residencial moderno o un espacio recreativo de gran alcance. Con un precio insuperable de solo UF 17.000, esta propiedad te ofrece una excelente relación calidad-precio, convirtiéndose en una inversión inteligente para el futuro. Imagina el potencial de transformar este vasto terreno en el lugar que siempre has soñado. No dejes pasar esta increíble oportunidad de ser parte del crecimiento y desarrollo de Antofagasta. Ponte en contacto con nosotros y hablemos de cómo podemos hacer tus sueños realidad. ¡El futuro te está esperando!

Ubicación

Mapa
map-preview

Consejos de Seguridad

Información

Solicita fotos y toda la infomación que puedas sobre la propiedad, para tener más seguridad sobre el terreno que te ofrecen.

Loteos Irregulares

  • Verifica que la propiedad esté en norma y cumple con los requerimientos legales.
  • Si te ofrecen un terreno sin rol, que no puedas registrar a tu nombre o es una venta a traveś de acciones o cesiones de derechos, evita comprarlo.

Seguridad

  • PortalTerreno.com nunca te pedirá contraseñas ni códigos de verificación a través de teléfono, WhatsApp, SMS o correo electrónico.
  • Sospecha si el precio te parece demasiado barato como para ser cierto.

PortalTerreno.com NO es dueño o vendedor del terreno. Los datos de contacto se encuentran en la ficha de la propiedad.













Publicado por

Kutt Property

Subir